0
Skip to Content
Home Page
Work
Consulting Services
About
Open Menu
Close Menu
Home Page
Work
Consulting Services
About
Open Menu
Close Menu
Home Page
Work
Consulting Services
About
View fullsize
View fullsize
View fullsize
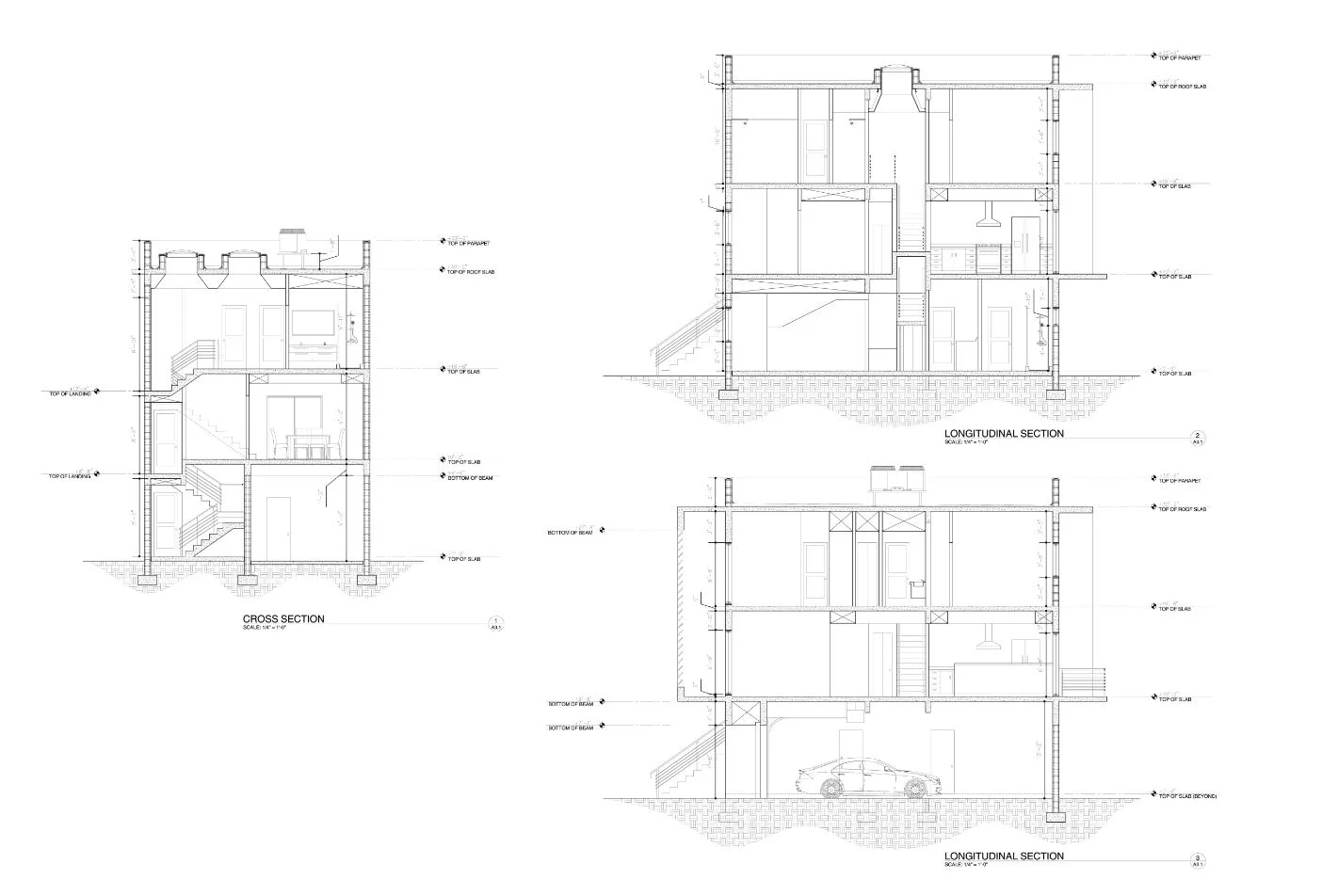
Central Unit Sections
View fullsize
Corner Unit Sections
Previous
Previous
Multifamily
Next
Next
Mixed Use